Overviews
HCP 0006 A Cabina de central modular para 6 módulos
La carcasa HCP 0006 A puede alojar una unidad de funcionamiento y visualización MPC con controlador de central, hasta seis módulos, baterías y fuentes de alimentación. La configuración modular permite una sencilla ampliación.
Planificación
Puede equiparse con:
- 1 unidad de mando y visualización MPC con controlador de la central.
- 1 raíl de la central corto PRS 0002 A para 2 módulos.
- 1 raíl de la central largo PRD 0004 A para 4 módulos.
- HPD 0000 A Distribuidor de Alimentación.
- 1 soporte de fuente de alimentación FPO‑5000‑PSB‑CH para carcasa de central.
- 2 baterías de 12 V/28 Ah.
Puede ampliarse con:
- FDT 0000 A Puerta frontal transparente, bloqueo en el lado derecho.
- FDT 0003 Puerta frontal transparente, bloqueo en el lado izquierdo.
Piezas incluidas
- 1 Carcasa.
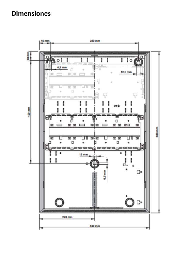
Nota: HCP 0006 A Cabina de central modular para 6 módulos para montaje en superficie o empotrado, o instalación en racks de 482,6 mm (19").
Numero de pedido: HCP 0006 A.









Valoraciones
No hay valoraciones aún.